
Thanks
Parsons School of Design and dr. Francesca R. Forlini,

Giuseppe Terragni Bio
1904-1943
![]()
Ciam III 1933
The War
The Last Project The Cathedral of 1943
Slides overview of Works Giuseppe Terragni
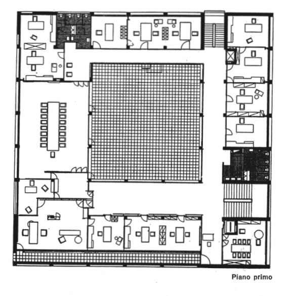
Casa del FAscio in Como 1932-1936
Functional Organization on three Bands
....
BUT what is the form making principles?
Date: Thursday April 20
Time: 10:00- 11:30 AM
Place: 16West 61st street, 11th floor Auditorium
Title: Design dangerously la Casa del Fascio by Giuseppe Terragni in Como
Program:
10:00-10:15 AM- Welcome and Opening Remarks > Maria Perbellini, Dean SoAD- NYIT
10:15-11:00 AM- Presentation of the book > Antonino Saggio, Universita' di Roma, La Sapienza
11:00-11:30 AM- Conversation and Q&A with Peter Eisenman, Yale University
Moderator Maria Perbellini
Casa del FAscio Interiors
Sopra Foto di Dennis Marsico dal Libro di A. Saggio LetteraVentidue
Below Pictures by Paolo Roselli da AA.VV. Atlante Terragni Editore Electa 2004
Le immagini © Paolo Rosselli
dal sito http://www.elledecor.it/architettura/Giuseppe-Terragni
Foto di Paolo Rosselli ATLANTE TERRAGNI Electa 2004
Asilo Sant'Elia 134-1937
Vedi film sull'ASILO SANT'ELIA
Vedi una serie di film con tutte le Opere di Terragni
Foto di Paolo Rosselli, Atlante Terragni, Electa 2004
Le immagini © Paolo Rosselli
dal sito http://www.elledecor.it/architettura/Giuseppe-Terragni
Three bands Organization
The Motiv of the Frame
Frame as a structural system
Frame as a functional container (porch, balcony)
Frame as an element for climate control
Frame as a modular system
Frame in the giant order, frame within a frame
Frame as a perspective window
Frame as a "Frame" as a partial view framing in a film sequence.
1.
Telaio come sistema strutturale
2.
Telaio come contenitore funzionale ( portico, balconate)
3.
Telaio come dispositivo per il controllo climatico
4.
Telaio come sistema modulare![]()
5.
Telaio nell'ordine gigante, telaio dentro telaio
6.
Telaio come Finestra prospettica
7.
Telaio come "Inquadratura" come visione parziale in una sequenza filmica .i.e. frame
Asilo Sant'Elia Interiors
Dennis MArsico
Contact me on Messanger if you have questions and comments
prof. arch. Antonino Saggio, PhDOrdinario di Composizione Architettonica e Urbana
«Sapienza» Università di RomaDipartimento di Architettura e Progetto - DiAPLaboratorio multimediale di Architettura - LaMAVia Gramsci 53, 00196 Roma ItaliaTel. +39 06 49919229/85
Other Materials on Giuseppe Terragni
Corso dedicato a Terragni Futuro
La Sapienza 2004

Spot on Schools Mostra
Firenze 2005
Casa dell'Architettura Exhibit
Rome 2006
Film su "Tutte" le architetture realizzate da Giuseppe Terragni
Books in The IT Revolution in Architecture Book Series
Selezione del lavoro degli studenti nel corso Terragni Futuro
Film dedicato a Terragni Futuro
Down load
8 minuti 330 mega

Blog con Approfondimenti dei laureandi di Saggio
Anthology of Writings by Antonino Saggio On Italian Rationalistic Architecture

Bibliografia su Terragni e il
Razionalismo Scritii di Saggio

freedownLoad A.Saggio, Giuseppe
Terragni Trivellazioni nel futuro,
Testo&Immagine Torino 1996

