Università CampusPA
Palermo 29 Maggio 2023
ringrazio
il prof. Santo Giunta

The Last Project
The Cathedral of 1943
Antonino Saggio
Giuseppe Terragni Vita e opere
Edizioni Laterza, Roma-Bari 1995
Presentazione di Francesco Tentori


Antonino Saggio
Giuseppe Terragni Una Biografia critica
Letteraventidue, Siracusa 2022
Con un contributo di Peter
Eisenman e una presentazione di Francesco Tentori
«Giuseppe Terragni: Il Mistero
dellla Giuliani Frigerio»
.jpeg)
I. Overview della Vita
Giuseppe Terragni Nato a Meda nel 1904 morto a Como a 1943
Terragni Patris II - Ciam III
Durante il viaggio Terragni presenta "in anteprima" il Piano Regolatore di Como, ecco di cosa si trattava:
“Il Piano regolatore di Como – vinto con il gruppo CM8 e illustrato da Terragni in anteprima al Ciam – è uno sforzo serio di previsione della crescita della città sulla base di dati che, una novità nel 1934, vengono faticosamente raccolti e analizzati. Non vi è alcun formalismo (Pagano li chiamava merletti ritagliati) in questo piano regolatore, ma uno sviluppo della città aperta al territorio circostante e alla regione. Per il centro antico, si applicano in diversi punti le tecniche di diradamento che Terragni aveva già studiato negli anni Venti e si sottolinea la necessità di «urgente e radicale risanamento» dei malsani quartiere della Cortesella, di Macello vecchio e di Via Vitani. Piuttosto dei massicci sventramenti promossi in altre città italiane o le ancora più radicali soluzioni proposte da Le Corbusier per Parigi, i progettisti indicano, con attenzione chirurgica, rettifiche e parziali allargamenti di sedi stradali già esistenti. Esse hanno però esclusivo carattere di «viabilità interna» (nè di attraversamento, nè di monumentalità) dato al contempo viene proposta una viabilità anulare esterna della cinta murata".
Ricordo di Piero BottoniL'Architettura 1968 p.196
La Guerra
download: "Giuseppe Terragni: la Campagna di Russia" mostra a Como a cura di Attilio Terragni, Valerio Mosco e Alberto Longatti
::::::::
Slides overview of Works Giuseppe Terragni
Film completo in dwg
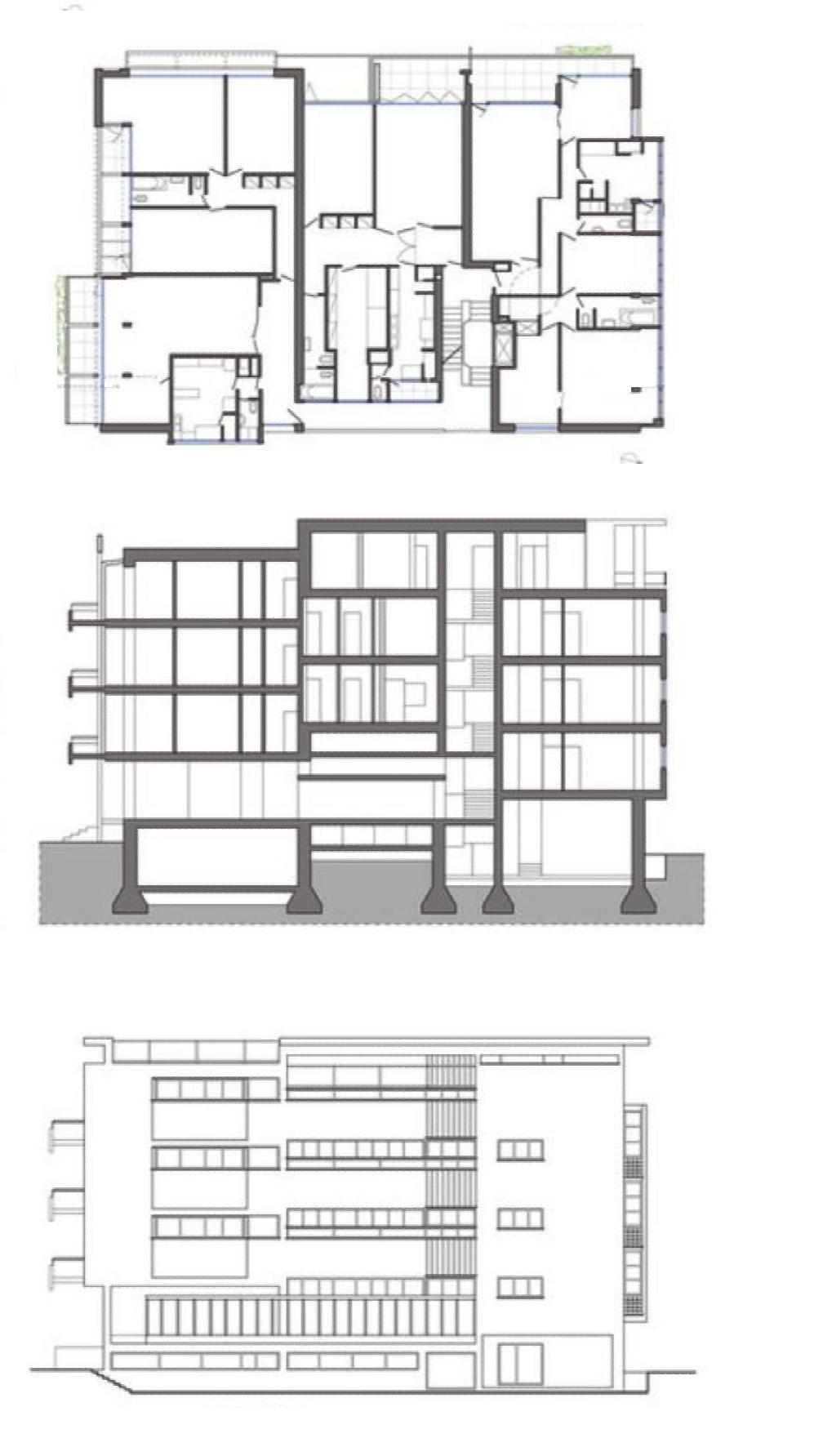
Giuliani Frigerio
Como 1939-1942







.jpeg)
.jpeg)
.jpeg)
.jpeg)
.jpeg)


.jpeg)
.jpeg)
.jpeg)
.jpeg)
.jpeg)

Altri materiali su Giuseppe Terragni
Antonino Saggio

Ulrich FlemmingOn the technical side: It was written before Stiny had extended to formalism to higher dimensions so that I had to describe the 3-D extension in words rather than by shape rules--I never updated the paper.
Corso dedicato a Terragni Futuro
La Sapienza 2004

***
Spot on Schools Mostra
Firenze 2005
***
Casa dell'Architettura Exhibit
Ro¢ 2006
***
"Tutte" le architetture realizzate da Giuseppe Terragni
***
Libri nella collana in The IT Revolution in Architecture Book Series
***
Selezione del lavoro degli studenti
nel corso Terragni Futuro
***
Film dedicato a Terragni Futuro
Down load
8 minuti 330 mega
Nella mia didattica vi è un ciclo volto a cogliere l'aspetto "diagrammatico" di alcuni progetti rilevanti. Lo scopo dell'analisi è comprendere il campo di variazioni "compatibili".


***
Blog con approfondimenti dei laureandi di Saggio

***
Bibliografia su Terragni e il
razionalismo Scritii di Saggio
***

freedownLoad
A.Saggio, Giuseppe
Terragni Trivellazioni nel futuro,
Testo&Immagine Torino 1996

