Home Publications Lectures ITRevolution
Antonino
Saggio I Quaderni



***
« My Housing
Research 1977-2025 »
Antonino Saggio
1977-2025
***
Mille Grazie per l'interesse alla ricerca sull'Housing e per
l'Invito al
Dr. Arch. Graziano Brau Pani,
docente presso la
Escuela Superior de Arquitectura y Artes, Guadalajara Messico
1.
Il Mio lavoro nell'Housing è cominciato sulla
scia della TENDENZA
1976-1978
2.
La mia Laurea è stata in ambito razionalista con
un forte impatto con il Sar

3.
Experience and collaboration in construction
Paolo Meluzzi Principal architect

4.
Spazi della vita residenziale Interesse per il Sar. Regole
fisse / variazioni
1985-1889
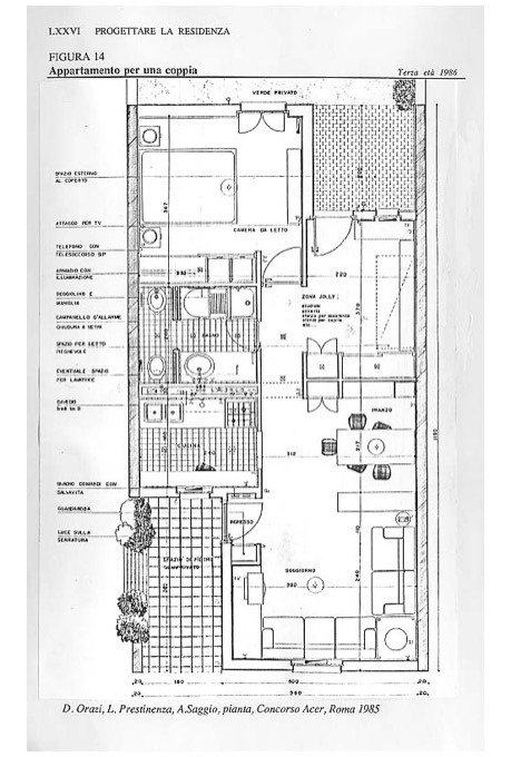
5.
ACER Case per la Terza Età
1986
CON L. PRESTINENZA D. ORAZI
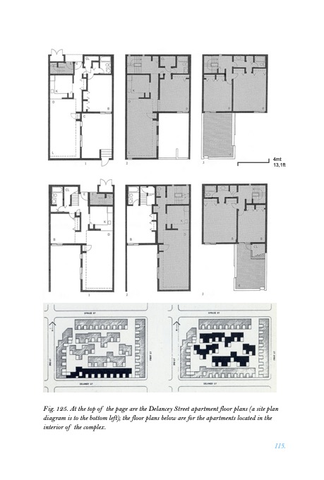
Louis Sauer: Low-Rise High-Density Housing
1985-1988
8.
1990
Concorso Acer con Ruggero Lenci et al
10.
1995-1997
Teaching and Research at Mondlane
Maputo Mozambico
11.
2013
Hundertwasser: unknown
genius of collective living
12
Housing and Infrastructures
2012-present
13.
Last Project Rome TTLine
2024
A. upOnTheSky
(quando si pensa alla TT Line non scordare
quanto succede sopra verso il "padre" cielo)
B. downOnTheLand (quando
si pensa alla TT Line non scordare quanto succede sotto verso la
"madre" terra)
14.
Ecology
Dissertazione dottorale Rosetta Angelini pagine dedicate al
quartiere di Sommerby
2015