
Laboratorio di Progettazione Architettonica IV
Facoltà di Architettura Sapienza - Università di Roma
Antonino Saggio Home
Corso 2015 Home
Pagine a cura del docente
A. Saggio home page
http://www.arc1.uniroma1.it/saggio/
Educational Blog
http://antoninosaggio.blogspot.com/
YouTube Station
http://www.youtube.com/AntoninoSaggio
Per Mercoledi 27 Maggio dovete preparare "Una presentazione" importante:
Alle 14,30 in aula o nel corridoio vetrato limitrofo vanno appese almeno 4 tavolette A3 che riassumono il progetto ad oggi e che presentano anche gli esiti delle ultime richieste vedi categorie "C" Sotto indicata.
Attaccare le tavolette per affinità
Ogni tavoletta va siglata con Titolo Progetto, TC n. (numero di Tevere Cavo) Nome e cognome.
Nel Blog sono pubblicate le "minime" 4 tavolette preparate più eventuali altre.
La preparazione delle tavolette può essere anche tradizionale (e poi scannerizzate e messe nel blog). E' benvenuta la scacchiera e il plastico del contesto già richiesto
La presentazione è anche una consegna indispensabile per il proseguimento efficace del laboratorio.
Sarà presa nota di chi presenta e chi non presenta. Chi non presenta si può far presentare il lavoro da un Alias / Buddy
La presentazione sarò valutata Con Sufficiente o Insufficiente: Inoltre sarà presente la firma del docente a convalida della presentazion sulle tavolettee.
Nella presentazione dovranno essere presenti in maniera aggiornata, i materiali già discussi alle presentazioni precedenti e cioè
A. Il concept dell'edifcio dal punto di vista del programma funzionale.
A1.Titolo del progetto. Sottotitolo esplicativo.
A2. Uno o due paragrafi che descrivono il programma funzionale e perchè secondo voi è importante nella situazione specifica
A3.Una indicazione in prima approssimazione, ma analitica degli spazi necessari allo sviluppo del punto A2.
A4. La pubblicazione come commento nell'area TC indicato nel blog Tevere Cavo QUI
per esempio :2015 TC 4, The home of lost work. Scuola del cuoio, Chiara Spiga, Mail: chiara.spiga2013@libero.it, http://chiaraspigalabiv.blogspot.it/
B. La presentazione della vostra caratteristica chiave "Bang". Un paragrafo
B1. Una titolazione del concetto chiave.
B2. Un prodotto di natura "sintetica ed espressiva" a vostra scelta (schizzo, digramma, plastico, fotomontaggio a vostra scelta)
B3. Una sezione o più sezioni schematiche dell'edificio
B4. Una ipotetica organizzazione in pianta
B5. Un primo plastichetto di studio al 200 derivato da una scacchiera di carattere sperimentale (scala a piacere)
B6. Una Tavoletta che illustri i concetti ambientali e bioclamitici individuati nel vostro edifìcio e le relazioni con le altre aree di Tevere Cavo
C. Organizzazione e ricerca distributiva. Il funzionamento
A questi materiali, già redatti sono da aggiungere
C1. Diagramma a blocchi con indicate in percentuale le aree e le relazioni tra i diversi processi. Deve essere in scala, ma non uguale allo sviluppo progettuale. Pensare anche allo spazio esterno e ai flussi che potenzialmente possono attivare un ciclo di 24 ore su 24.
C2. Raccolta di almeno "tre" fotocopie provenienti da Manuali dell'architetto o da regesti tipologici distributivi con in dettaglio distributivo indicate tre parti del vostro programma d'uso (esempio, mensa, cucina, blocco scale, parcheggio, libreria o di parti che riguardano specificatamente il vostro tema progettualeeccetera ecctera)
C3. Schematizzazione al 500 e con colori (tipo brochure commerciale) del vostro progetto dal punto di vista dei processi con indicate approssimativamente le quantità
C4. Schematizzazione delle zone serventi e servite al 500 come fosse una macchina! elementi di distribuzione ed energetici (cioè servizi da quelli igenici a tutti di vario tipo)
C5. Applicazione corretta e dimensionata nello schema reale al 200 dei vostri tre schemi distributivi - dimensionali (cfr. C2)
C6. Verifica con il cliente dal punto di vista organizzativo e distributivo delle vostre ipotesi
E. Un plastico alla scala circa dal 1:200 al 400 a seconda dei casi che rappresenti le scelte fondamentali dell'edificio.
F. Opzionale
Alcuni di voi potrebbe volere provare a montare questo materiale "come se fosse una brochure" per far circolare il progetto, sempre di più in molti aspetti e prassi dell'architettura contemporanea le prime proposte passano in forma di brochure o di rapporto di medio piccolo formato. Sono queste presentazioni-idee concetti quelle che muovono il progetto in molti ambiti preliminari (raporti con i clienti, con le amministrazioni i finanziatori e muovono il progetto in questa dimensione)
In questo caso il formato non deve essere A3 ma 16,83 x 26.03
Infatti come vedrete POTRETE PUBBLICARE ON DEMAND IL VOSTRO PROGETTO
questa opzione sarà aperta anche per il progetto finale per la prima volta quest'anno per chi sarà interessato
http://www.lulu.com/
ecco due esempi di Brochure Particolarmente Convincenti
Brochure 1: concept e finanziamenti

Holzmarkt, Berlino rendering e immagine FSKA Architects
Brochure 2: Sviluppo del progetto architettonico di Massima
Eckwerk Berlino
Scadenziario.
Ogni studente deve preparare una revisione seria e dettagliata, se possibile due con i docenti.
Queste revisioni saranno segnate in foglio a parte
Il plastico richiesto al punto E deve essere già pronto e funzionare si intende un plastico di studio come fosse una "scacchiera" non è un plastico di presentazione ma di studio e verifica quindi realizzarte molti più pezzi di quelli necessari e fate diverse ipotesi studiando alterntaive spaziali, climatiche e contestuali
Cominciare a raccogliere le fotocopie dai manuali per essere informati delle specifiche necessità organizzative e distributive del vostro progetto specifico:
Per fare revisione è importantissimo che portiate anche il pastico di inquadramento urbano! per aiutare tutti a visualizzare la vostra situazione.
Tra parentesi se si ipotizza un atrio farlo bioclimatico!!!!
Vedi questo eccezionale esempio
Lezione: Principi di organizzazione Distributiva
ovvero la Macchina funzionale dell'edificio, il Motore
1. Il primo principio chiave è che il flusso "processuale" (Ex funzionale) delle attività non è direttamente tradotto in decisioni architettoniche.
Le relazioni con il bang e con il programma sono attente e precise, ma mai automatiche.
si può leggere con bibliografia >>
Typycal distribution Scheme with flow, adjacencies and proportianal surface area

2. Il secondo principio chiave è la differenza tra servito e servente
Sauer si può leggere questo articolo con bibliografia, oltre che in Architettura e Modernità >>
oppure In Inglese

Servente all'esterno a caratterizzazione della forma architettonica e come strategia funzionale

quando il servente diventa il bang
oppure quando il servente rimane servente, e il servito si autonomizza plasticamente
Vedi in Brochure 2: Sviluppo del progetto architettonico di Massima
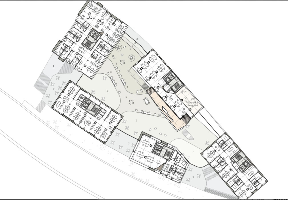
3. Il terzo principio è "la conquista del centro"
http://www.arc1.uniroma1.it/saggio/Bibliografia/Citazioni/Gehry.html
La spina centrale ad "L"

La Galleria aperta sulla corte e che alle spalle distribuisce le varie parti del programma


Il progetto di Un Studio che abbiamo già incontrato è un imporante esempio di "conquista del centro". La aprticolarità di questo appraccio più contemporaneo consiste nell'intessere "un diagramma" variabile (in questo coao il continuo intreccio tra i quattro spazi principali) e non una geometria fissa
Progettazione accurata spazi interni
Architetto Rosetta Angelini, Spazio "civico zero" via dei Bruzi, Roma (sinistra)
Architetto Rosetta Angelini, Spazio "Galleria come_se" via dei Bruzi, Roma (destra)
Tavola Grafica redatta a cura di Crilo, basata su una combinazione tra SketchUp e Illustrator/Photoshop
Esempi di tavole Tipo brochure
tutto il lavoro >DelGrandeCarta
Costi ed esempio tavole Tipo Brochure
Tutto il Lavoro di Lorena Greco e Cristian Farinella >>

magrini 2010