Laboratorio di Progettazione Architettonica IV
Facoltà di Architettura Sapienza - Università di Roma

 

Antonino Saggio Home
Corso 2015 Home

 

Conclusione del corso. Elaborati per esame
Revisioni, Esame e Mostra finale

 

A. Revisioni

Le revisioni del professore e dei docenti si svolgeranno nella sede di via Gramsci a partire dalle ore 15 ogni mercoledi in aula 16 sino all'esame
Ci si vede quindi mercoledi 1 luglio alle 15:00 in aula per l'illustrazione del programma di esame e poi procedereremo con le revisioni. Portate tutto il materiale presentato al pre-esame con gli avanzamenti già richiesti. Chi ha maggiori difficoltà porti il rapporto scritto delle richieste specifiche formulate dei docenti.


 

B. Esame e Mostra Finale

21 e 22 luglio esame Sede di Via Gramsci
Si appende tutti e si presenta con decisione contestuale (cioè l'ordine di presentazione dipende da molti fattori, che si decideranno di volta)

Chi ha motivatissime ragioni, può dare il proprio materiale ad un alias che lo appenderà in sua vece e verrà quando può, ma assolutamente il girono 22

Infatti si verbalizza tutti insieme il giorno 22 LUGLIO . L'appello del Laboratorio IV, è in relazione alla attiva frequenza testimoniata dal 70% delle firme e all'effettivo superamento del pre-esame del 25 giugno con Pre esame e si svolge in sessione Unica. Non vi sono altri appelli per questo esame come annunciato sin dall'inzio del Corso.

Gli esami sono fissati con inizio Martedi 21 Luglio ore 9. Venire in facoltà TUTTI alle ore 8:30 per appendere seguendo indicazioni dei docenti. AVERE SCOTCH TRASPARENTE (devo fare una ripresa video quello di carta viene male!). Gli esami sono in Via gramsci Aula 7 e corridoi adiacenti, si protarranno per tutta la giornata del 21 luglio, Reinizieranno il 22 luglio e si protraranno per il resto della giornata con probabile verbalizzazione nel primo pomeriggio . Tutti i lavori sono appesi a partre dal giorno 21 e la commissione si muoverà per gli esami anche in rapporto a sovarapposizione con altri esami per minimizzare conflitti. Anche per questo, tutti i lavori devono essere appesi dalle ore 9 del giorno 21 e rimanere appesi sino al termine degli esami il giorno 22.

E' fondamentale che gli studenti attivino i processi di Prenotazione automatica in segreteria secondo le modalità a voi note al sito info.stud "ULTIMO appello disponibile per il laboratorio IV del mese di Luglio". Prenotazioni a precedenti appelli non sono valide

 

Invitate i Clienti

Siccome tutti i lavori saranno appesi lungo i muri della facoltà, con i plastici su uno o più sgabelli, in questo caso accanto alle vostre tavole, è molto auspicabile che venga il vostro cliente a vedere il lavoro finito. Il cliente è benvenuto a partecipare con i docenti alla discussione sui progetti. Ricordatevi di presentare il cliente ai docenti e al professore. La maniera di procedere è la seguente. Invitare il cliente, se si vuole anche inviandogli la mascherina che sarà presto pronta, se il cliente arriva, a sua scelta il giorno 21 o la mattina del 22, portate il cliente in giro per la mostra e illustrategli brevemente due o tre progetti secondo voi interessanti, cioè fategli una visita guidata (è sempre fondamentale e utilissimo). Poi illustrategli in dettaglio il vostro progetto e se potete anche quelli interconnessi. Poi me lo presentate e noi faremo la discssione del vostro esame con il cliente presente. In altre parole il concetto è: quando il cliente è disponibile la commissione si sposta ad esaminare quello specifico progetto.


 

C. Contenuto dettagliato dell'esame finale

 

Opzionale Tavola introduttiva di gruppo

Le presentazioni-esami si svolgeranno per gruppi omogenei di tre persone, minimo - sei persone massimo a scelta degli studenti per affinità. Gli studenti possono formare il gruppo per "adiacenza" (preferbilmente) o altrimenti per attinenze tematiche. Il gruppo-presentazione deve darsi un nome-argomento ed iniziare la presentazione congiuntamente per poi passare alle presentazioni individuali.

Il gruppo redige almeno una tavola sinottica A2 in cui a sua scelta individua il tema di affinità e propone alcune strategie ambientali di interconnessione tra i diversi urban voids proposti. Per esempio un programma che punta sulla bicicletta può avere relazioni con altri limitrofi che sviluppano un tema complemtare localizzaot in un altro urban voida areas. Dei fatti urbani, percorsi illuminazioni alberature possono rafforzare le sinergie tra più progetti.

Si dà per inteso che ciascun gruppo tematico si formi su una negozione ATTIVA tra i progetti che condividano streategicamente la migliore possible relazione tra almeno tre progetti.

E' auspicabile che pur all'interno delle scelte compiute si indichino altri possibili progetti eventualmente da inserire in una connessione tematica o urbana generale.

 

Tavole

Gli studenti redigeranno "un minimo" di Sette tavole, nel formato A2 verticale (preferibile per varie ragioni) ciascuna organizzata sui seguenti argomenti. Due plastici sono richiesti.

Le tavole devono essere "assolutamente" pubblicate precedententemente, nel proprio blog!

Tutte le tavole porteranno la dicitura:

Nome e Cognome studente, 1. Tevere Cavo 10 (o Numero corrispondente alla vostro area) Laboratorio IV D, prof. Antonino Saggio, con il nome del Consulente arch. R. Angelini, G. De Francesco, M. Badissara, Sapienza Università di Roma Fac. di Architettura, 2015.

Ecco il materiale minimo richiesto e gli argomenti per ciascuna sezione (Minimo una tavola A2 per argomento, ma anche di più se utile e necessario in particolare nelle sezioni tecniche del progetto).

In alcuni casi i disegni, se troppo ampi per la scala rchiesta, possono correre su due Tavole A2 adiacenti sulla verticale). vedi sotto


NB: Inserite una scala metrica grafica nei disegni tecnici, insieme alla freccia del nord i disegni possono essere anche nella scala esatta "canonica" visto che esiste òla scala grafica

Ricercate una grafica espressiva, certamente, ma evitando effetti fumettistici..

 

A. Il concept dell'edificio dal punto di vista del programma

A1.Titolo del progetto. Sottotitolo esplicativo.

A2. Uno o due paragrafi che descrivono il mix funzionale e i PROCESSI di utilizzo messi in atto nell'edificio.

A3.Una indicazione in prima approssimazione, degli spazi necessari allo sviluppo del punto A2.

A4. Elementi dell'analisi del sito e della situazione specifica dell'area e delle ragioni che vi hanno spinto alla scelta del programma

A5. Altri elementi di ordine grafico, fotografico, concettuale che possono derivare da studi, esempi, appunti, indicazioni a lezione eccetera che possano supportare la ragione della scelta e la sua intima necessità.

Ogni altro materiale a vostra scelta

B. Le scelte dell'edificio dal punto di vista del contesto.

B.1 Le strutture di urban voids e le caratteristiche della vostra area.

B2. L'idea di tessitura.. o altre idee (griglie ecctera) che spieghino alcune ragioni che presiedono alla anscita delle scelte strategiche del progetto. Utilizzo della scacchiera e delle foto della scacchiera in varie configurazioni se serve!

B3. Il contesto dal punto di vista dei processi sociali innanzitutto le relazione con il cliente, interviste punti chiave eccetera

Altri argomenti pertinenti....

C. Le scelte dell'edificio dal punto di vista ambientale

C1. Relazioni ambientali specifiche, idee di ciclo e processo locale e globali

C3. analisi critica con le strategie d'intervento dal punto di vista ambientale

Un paragrafo descrittivo dei principi adottati nel vostro progetto dal punto di vista ambientale .... Planimetria con inserimento nell'area con studio di Ventilazione (500 o 1000)

....Planimetria con inserimento nell'area con studio di Soleggiamento (500 o 1000)....Profilo di inserimento se fatto studio di Ventilazione e certamente studio di Soleggiament

...Sezione sud ovest/nord est con funzionamento estivo (200)... Sezione sud ovest/nord est con funzionamento invernale (200)

..... Pianta distributiva in cui sono indicati le relazioni tra il programma d'uso (zona serventi e servite) e le scelte ambientali (200 o 500)....Dettaglio di prospetto e o sezione con presenza di dettaglio tecnologico pertinente al sistema ambientale adottato (scala a scelta)

NB. Gli elaborati sono scrittografici (contengono cioè scritte e diagrammi esplicativi)

D. La presentazione della caratteristica chiave dal punto di vista spaziale
Il bang

D0. Il vostro luogo dell'imprinting, ritorno all'idea originaria e vedere cosa è rimasto come può essere interpretato otto quella luc il vosto progetto

D1. Una titolazione del concetto chiave e un pargrafo descrittivo

D2. Un prodotto di natura "sintetica ed espressiva" a vostra scelta (schizzo, digroamma, plastico, fotomontaggio) sul punto D1. Il disegno è fondamentale per far capire il "bang" ovvero le qualià spaziali ed espressive ricercate nel vostro prgetto . Potrebbe essere una sezione prospettica, una assonometria o altro ancora. Scegliere e produrre questo elaborato è la chiave della tavola . Utilizzo della scacchiera o di foto della stessa per far capire la qualità formale da voi ricercata

D3. Una sezione o più sezioni schematiche dell'edificio (al 200).

D4. Una ipotetica organizzazione in pianta dal punto di vista del bang.

D5. La auspicabile relazione con principi di natura ambientale e bioclimatica

Ogni altro materiale a vostra scelta

E. La presentazione della vostra organizzazione chiave dal punto di vista distributivo

E1. Diagramma a blocchi- o strumento similare - con indicate in percentuale le aree e le relazioni tra le diverse attività. Deve essere in scala, ma non uguale allo sviluppo progettuale: lo spazio esterno e i flussi potenzialmente che attivizzano un ciclo di 24 ore

E2. Raccolta di almeno "tre" fotocopie provenienti da manuali dell'architetto o da regesti tipologici distributivi con un dettaglio distributivo associabile a tre parti del vostro programma d'uso (esempio mensa cucina blocco scale parcheggio libreria aule alloggi eccetera eccetera) Inserite o meno nelle tavole a vostra esclusiva scelta

E3. Schematizzazione al 500 e con colori (tipo brochure commerciale) del vostro progetto dal punto di vista dei processi con indicate approssimativamente le quantità (spazi coperti; spazi scoperti di progetto..) Calcolate le superfici coperte dell'edificio in metri quadri nei vari piani utilizzati, e le superficie scoperte sia se terrazze sia se trattamenti a terra. Per avere un'idea di prima approssimazione del costo complessivo dell'opera usate queste indicazioni: 1200 euro al Mq spazi coperti inclusi anche il sottosuolo, 350 euro spazi scoperti. Arrivate rispetto alle vostre quantità ad un costo indicativo dell'opera.

E4. Schematizzazione delle zone serventi e servite al 500 come fosse una macchina! elementi di distribuzione e energetici (cioè servizi da quelli igenici a tutti di vario tipo)

E5. Applicazione corretta e dimensionata nella pianta reale arredata al 200 dei vostri tre schemi distributivi dimensionali

E6 . Schematizzazione delle logica del rapporto tra zone sertive/serventi e funzionamenti ambientali e bioclimatici!

F. La presentazione della vostra organizzazione dal punto di vista strutturale.

Riflettete e presentate il vostro concept dal punto di vista strutturale. Decidete come è costruto il vostro edificio. Per punti strutturali, con un sistema a telaio..(se in acciaio o in cemento armto o in legno) oppure con un sistema di mura portanti tendenzialmente continuo, oppure con sistemi particolari per esempio tenso struttura o membrana o elementi prefabbricati, oppure con mesh tridimensionali spaziali...

F1 Realizzate degli schemi anche al 500 in pianta e se serve in sezione per illustrare come intendete costruire l'opera. Per esempio indicate le travi principali, il senso di tessitura dei solai. Considerate con grande attenzione i Vuoti del progetto. Per esempio patii, grande atrii passanti, rampe, scale, la presenza dei piloni del sotto portico a cui "non ci si può" attaccare strutturalmente ma che ppartengono alla categoria dei vuoti cui tenere conto strutturalmente.

F2. Illustrate sempre con schemi i sistemi per affrontare le situazioni particolari. Per esempio grandi sbalzi oppure gli atri le scale eccetera.

F3. Realizzate una pianta almeno al 200 con in evidenza le parti portanti con spessori adeguati molto difficlmente inferiori ai 40 centimetri, e indicate diversamente sia graficamente che come spessori le parti coibentate esterne.. in genere e diffcilmente inferiori ai 35 centimetri e i tramezzi interni circa 10 centimetri. Tenete conto di queste indicazioni anche quando disegnate le piante arredate.

F4. ogni altro materile grafico o in modello per illustrare la vostra concezione strutturale...

G. La presentazione della vostra organizzazione chiave dal punto di vista della ricerca espressiva

F1. Una paragrafo descrittivo e un possibile titolo della vostra ricerca in questo campo

F2. Schemi di ricerca (scala 1:200) a. Silhouette, b. Chiaroscuro, c. Attacco al suolo, d. Attacco al cielo f. colore, g. proiezioni elementi informatici e virtuali, h. elementi di dettaglio ambientale e tecnologico , Devono essere schizzati a mano!!! e digitizzati nelle tavole. Si esludono grafici computerizzati. Fate dei disegni a mano che mettano in evidenza quello che è importante e anche la ricerca espressiva, se il progetto aderisce principio alla categoria dellla massa, trasparenze tessiture, Paesaggio, Frammento, Pieghe e superfici

F3. Due prospettti alla scala 1:200

F4.Scelta di uno e di uno solo dei prospetti significativi dell'edificio scala 1:100

F5. FOTOMONTAGGIO del progetto nell'area di URBAN VOIDS realizzato con grande cura. Disegno chiave fondamentale dell'intera presentazione.

E6. Ogni altro materiale a vostra scelta

Preparatevi a rispondere ad alcune domande pertinenti al vostro progeto in rapporto allo STUDIO del libro del corso "Architettura e Modernità" in particolare riferito al capitolo 6-8.

ATTENZIONE: InISERITE NEI GRAFICI FONDAMENTALI

A. La SCALA METRICA (cosi potete anche usare scale non canoniche..)
B. IL NORD
 
 
H. La ricerca ricerca Plastica

h1. Plastico di inquadramento generale del progetto nell'area

H2. Plastico di studio concettuale che evidenzia il bang

H3. Plastico di insieme al 200

H4. Plastico di dettaglio della facciata a scelta dal 100 al 20 a seconda dei casi.

H5. Plastico concettuale "scacchiera"

NB Si richiedono almeno due plastici "a scelta della studente" tra i cinque elencati. Ricordarsi che i plastici possono essere fotografati, anche nel processo di costruzione, poi trattati graficamente e quindi inseriti nelle tavole per sottolineare un punto particolare;

 

F. La brochure extra opzionale!, ma che concorre al giudizio

Ad alcuni di voi potrebbe volere provare a montare una selezione del materiale "come se fosse una brochure" per far circolare il progetto. Sempre di più in molti pratiche dell'architettura contemporanea le prime proposte passano in forma di brochure di medio piccolo formato. Sono queste presentazioni-idee concetti quelle che muovono il progetto in molti ambiti preliminari (raporti con i clienti, con le amministrazioni i finanziatori e muovono il progetto in questa dimensione)

In questo caso il formato deve essere A3 ma 16,83 x 26.03

Realizzate anche un unico pdf (in genere il programma che si adopera è Adobe Acrobat professional - della suite adobe -

Per impaginare si puo usare word o anch pages (nel Mac) impostando le dimensioni pagina in 16,83 x 26.03 e poi chiedere di esportare in pdf, oppure se lo sapete usare il programma professionale di Impaginazione Indesign 8suite adobe) o Quark. Fare ogni pagina inphotoshop e poi esportarla in pdf e poi montarle tutte insieme in Adobe Acrobat professional - della suite adobe - è molto più laborioso

POTRETE PUBBLICARE ON DEMAND IL VOSTRO PROGETTO in Brochure da qui;

http://www.lulu.com/

 


 

Norme per appendere le tavole e condurre l'esame

1.
Innanzitutto precipitate a prenotarvi Infostud se non lo avete fatto. Sto per chiudere e stampare. Dopodichè le liste sono chiuse e tutto si complica

2.
Inserite tutte le vostre tavole in formato Jpeg nel vostro blog. E' importante, è a futura memoria, molti di voi e io stesso fa piacere riguardare il vostro lavoro! Inoltre la pubblicazione oltre ad essere a futura memoria serve anche per selezionarvi per mostre, pubblicazioni eccetera.

3.
Presenteremo appendendo i disegni per l'intera facoltà ! in una specie di Mostra evento per tutti. Si appenderà tutti già il giorno 21luglio TUTTI inizando alle ore 8,305! e poi si deciderà contestualmente da dove inziare. Appendere al muro (procuratevi scotch di carta Trasparente) i vostri lavori, organizzati per gruppo. Procederemo a discutere la tavola generale e poi i lavori singoli per l'esame.

4.
Preparate con cura la parte orale dell'esame! fate degli allenamenti per essere sicuri di dire le cose importanti nell'ordine che meritano. Questo può avvenire solo preparando prima la presentazione orale che ha un suo peso.

Appendere le tavole consente le seguenti attività
A. Fotografarle prima (lo potete fare voi stessi oltre a io stesso)
B. Rendere partecipi gli altri
C. Avere una partecipazione (silenziosa!) allo svolgimento dell'esame
D. Fare un breve film di tutti i lavoi e di voi stessi. ecco un esempio su You Tube AA2013 o Youtube 2014

Utlizzate I corridoio esterni all'aula,

NB. Per chi non lo avesse ancora fatto, inserire un commento nel Post corrispondente alla propria area nel blog di Tevere cavo
Dati: Numero Tevere cavo, Titolo, sottotitolo, Nome e cognome, Email, Blog address

esempio:
URBAN Voids: n. 5, inRETE. Centro produzione artigianato personalizzato e insegnamento software progettazione, Silvano Oliva, Mail:olivasilvano@gmail.com, http://olivasilvano.blogspot.it/


Esempi grafici di riferimento

Vi Possono essere utili come esempio alcune tesi di laurea particolarmente esemplari. Naturalmente le tesi richiedono molto più tempo lavoro e implicano una maggiore esperienza rispetto alla vosta, ma l'approccio non è lontanissimo e alcune tecniche di presentazine vi posson essere utili

Molti esempi provengono in questi due volumi, sono in biblioteca o in pdf

preview integrale del catalogo clicca anteprima e aspetta

Scarica in PDF

 

Publications of final works

 

Ricordatevi sempre che da questo link potete accedere a tutte le tesi di laurea, relatore Saggio, con forniscono una ampia casistica di moalità di rappresentazzione-

Tesi Prof. Antonino Saggio Vai

Esempio di fotomontaggio
Se volete usare Sketch up per fare un ambientamento andate a questo tutorial che ho fatto tempo fa >>>

Nazareno Tiberi

Ivan De cataldo

Luca Bregni Antonio De Rosa >>

Esempio di fotomontaggio
Giovanni Betti

Claudia Fiorentino

altri esempi di fotomontaggio realizzai dagli studenti del laboratorio 2010 vai qui

Esempio di Pianta al 200

Andrea Sollazzo

Esempio di Sezione e prospetto al 200

Matteo Alfonsi

Monica Ercoli

Cristian Farnella, Lorena Greco vai all'intera tesi per altre belle idee anche di grafica >>>

Sezione di dettaglio

Esempio di Pianta e sezione al 100

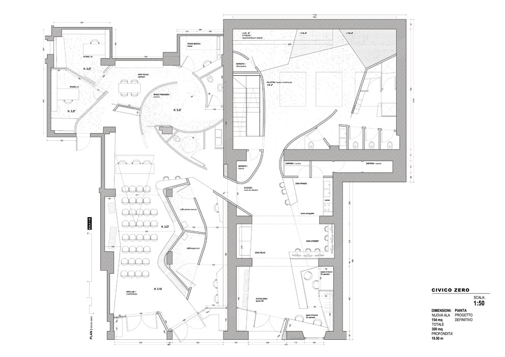
Rosetta Angelini Galleria "come se"

Rosetta Angelini, Centro civico Zero


con rappresentazione Grafica Crilo

Esempio di Analisi Contestuale

Antonino Di Raimo

Esempio di Ricerca Plastica

Rosetta Angelini

Esempio di Bang

Marta Moccia

Esempio di Elementi Distributivi Quantitativi

Vanina Ballini

Esempio di Integrazione architettonica ambientale

Nazareno Tiberi

Esempio di dettaglio di un elemento chiave del progetto

Vanina Ballini


 

Link ad alcuni dei lavori migliori degli anni precedenti
Molto importanti per capire grafica, modalità di impostazione e migliorare il proprio progetto sulla base dell'esperienza condivisa.

Laboratorio 2014

Film Youtube 2014


Laboratorio 2013 .. una selezione di progetti
Vedi un film you Tube di tutti Il lavori

 

 

Laboratorio 2012 ... una selezione di progetti
Vedi un film you Tube di tutti Il lavori

 

Laboratorio 2011 ... una selezione di progetti
Vedi un film you Tube di tutti Il lavori

 

Laboratorio 2010 ... una selezione di progetti
Vedi un film you Tube di tutti Il lavori