Home Publications Lectures The ITRevolution
Antonino Saggio I Quaderni


8. Contextual Object. Concorso per l'area di Venezia-Cannaregio, Venezia 1978
Talks
Polis University
Master Lecture and Workshop 2014
Drillings into the Future
Six and 1/2 Design Operations of Peter Eisenman

Audio Fourth Part May 10, 2014
....
Antonino Saggio, Giuseppe Terragni Vita e Opere, Editori Laterza, Roma Bari 1995, 2011 4ed. ^^
Antonino Saggio, Peter Eisenman trivellazioni nel futuro, Testo&Immagine, Torino 1996 ^^
Antonino Saggio, Architettura e Modernità Dal bauhaus a La rivoluzione Informatica, Carocci, 2010 ^^

NB: All quotations in this web page are coming from the above book of the author on P. Eisenman
Translate the text of this lecture in English
I - IMPLOSION
II - CUT
III - LAYEREDS GRIDS
IV - IN BETWEEN
V - SWINGING
VI - TOPOLOGICAL LAND FORM
VII - TELLURIC FORMALISM
I - IMPLOSION
2. Giuseppe Terragni, Casa Del Fascio 1932-36 - Casa Giuiani Frigerio 1939-1943 Como
. 
.......
..
2. House II. Hardwick, Vermont 1969-70
"...La perimetrazione esterna richiama la presenza della forma primaria e lo stesso uso del telaio della Casa del fascio, ma l’interno mette in azione lo slancio dinamico della Giuliani-Frigerio. Il telaio di conseguenza non definisce più intagli geometrici sul cubo ma diventa un piano astratto, una struttura trasparente lasciata all’esterno per trattenere i piani che esplodendo vorrebbero eliminare la gabbia.
La soluzione che Eisenman dà al conflitto che aveva scoperto in Terragni ha una parola: Implosione. Una esplosione delle pareti, dei piani, dei volumi che però non invade l’esterno ma è rivolta verso il dentro, verso se stessa. Una violenta reazione chimica viene trattenuta ed esaminata dentro una provetta..." cit. ^^ p. 20






2. Notes on Conceptual architecture, 1967

3. House III. Lakeville, Connecticut 1969-71
...La struttura diventa sovrabbondante, doppia, tripla, ma non per rivelarci una tensione e un modo di affrontarla (come nella House II) ma semplicemente quale ripresentazione della scelta che ha generata la forma. cit. ^^ p. 24
..



4. House IV. Falls Village, Connecticut 1971
...L’Implosione qui è risolta nel modo tutto sommato più naturale: uno spazio quadrato centrale con gli ambienti principali distribuiti su livelli sfalsati e uno spazio a corona esterna che contiene un secondo diaframma. Naturalmente questo diaframma si svuota o si chiude, varia leggermente, a volte manca completamente per far percepire tutta la profondità dello spazio. Un’opera estremamente ben congegnata, che rivela con didattica evidenza come risolvere il problema, ma che anche, per questa stessa sicurezza, rischia di innestare una routine, uno stile, che il giustamente irrequieto Eisenman rifiuta. p. 25


5. House VI. Cornwall, Connecticut 1972-75
...Appaiono “scatole volume” sovrapposte o scalettate svuotate in alto o in basso, ma appunto non più piani ma volumi. È un’azione che l’architetto non porta alle estreme conseguenze e che coesiste con bizzarre travi in aggetto a mo’ di cornicioni o basamenti e dall’altrettanta incongrua presenza di setti liberi (fragili memorie delle operazioni tutte diverse compiute nelle altre case). p. 28



II - CUT
6. House X. Bloomfield Hills, Michigan 1975-78
...Questa poetica per volumi esplosi si basa su un percorso anulare che, legando tra loro le varie situazioni del lotto, attraversa in discesa la casa suddividendola in due parti. Il percorso incontrando la casa si trasforma in una scala, i cui pianerottoli generano altri due blocchi distinti per lato. Una mossa questa volta «centrata»: innanzitutto funzionalmente, perché i quattro quadranti, creano spazi altamente fruibili, collegati tra loro dalla spina in discesa ma ognuno autonomo (zona giorno, studio, sala di servizio, camere per gli ospiti per i circa 730 mq complessivi). Ogni blocco inoltre è dotato di un autonomo sistema di scale che permette di accedere al livello superiore con stanze o terrazze sull’intera superficie coperta o solo su delle porzioni. I quattro quadranti staccati e a un tempo collegati si possono articolare in differenti altezze e far dialogare tra loro i materiali. Eisenman vi userà sia le reti (poi tipiche di Gehry) che i rivestimenti in panelli di alluminio (che saranno di Meier) ma anche gabbie modulari vetrate che dal percorso fuoriescono lateralmente. p. 29





9. Fin d'Ou T Hous S, 1983
...L’opera elabora gli stessi temi delle precedenti (trasformando le “L” in un cubo mancante di una parte). Vi riappare, a chiusura di un ciclo aperto quindici anni prima, il motivo del telaio terragniano. Siamo nel 1983, in un anno di ricominciamento anche dal punto di vista personale. p. 32



III - LAYEREDS GRIDS
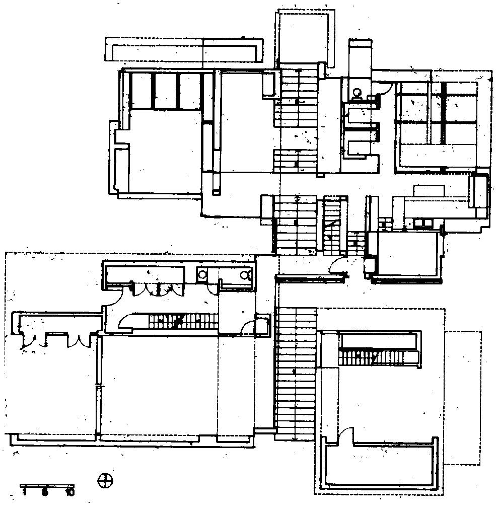
7. House XIa. Palo Alto e Concorso per l'area di Venezia-Cannaregio, Venezia 1978
...La casa da una parte usa la nuova ricerca sul volume e sui materiali (emergono due tessiture: una vetrata con montanti molto ravvicinati come una serra e una seconda invece monolitica che si intreccia sovrapponendosi alla prima) dall’altra manifesta una intenzione di radicarsi alla profondità. Il progetto, sfrutta l’antico interesse per le geometrie ad “L” muovendole però su tre dimensioni, sovrapponendole e ruotandole a spirale con la figura dell’elica o meglio, bisognerebbe dire, della trivella.
Sempre per il progetto di Venezia-Cannaregio disegna un “Contextual Object” [accanto] che toglie quel minimo di rassicurante presenza del padiglione di House XI. Si presenta come una casa-sezione: un pozzo di trivellazione. Come non pensare alla follia analizzata da Foucault, che Eisenman cita ora ripetutamente, o alla famosa citazione del dialogo Marat-Sade di Peter Weiss. Nel fosso buio del rivoluzionario deluso Marat, per uscire ci si può aggrappare solo ai propri capelli. p. 32

From Cannaregio to Castelvecchio
10. Edificio d'Abitazione per l'IBA. Checkpoint Charlie, Berlino 1981-85
...L’opera ripresenta l’idea di frattura, di lacerazione sia nei tracciati con cui è incisa l’elevazione che nella dinamica frammentazione delle masse. ... Gli appartamenti sono serviti da una scala comune posta nel retro e sono distribuiti da un ballatoio che si ripete nei sette piani.
Alla base del progetto questa volta non sono i meccanismi sintattici della architettura di carta, ma appunto l’idea dello sterro. Per cui l’edificio, con le parole dell’architetto, è come «sollevato» da un terreno archeologico: le masse «sono letteralmente fossili fuoriusciti dal piano orizzontale del terreno».
Il progetto realizzato non ha la capacità di rappresentare tutti i suoi complessi rimandi soprattutto perché non può contare sule parti che Eisenman aveva proposto nel progetto di concorso. p. 36



11. Parco de la Villette. Parigi 1986 con Jacques Derrida
...È una serie di dislocamenti e sovrapposizioni di griglie su un’area di circa 210 metri per 270 che hanno origine da frammenti di storia rintracciate nelle mappe. L’esito è un intrigante collage, (fa pensare ai lavori di Mimmo Rotella che scorticava i manifesti pubblicitari che negli anni erano stati sovrapposti l’uno all’altro), ma manca di una strutturazione spaziale convincente. p. 39

13. University Art Museum. California State University, Long Beach, California 1986
...I tracciati usati per modellare il progetto con la tecnica del palinsesto derivano di nuovo dalle planimetrie storiche dell’area (il ranch che vi preesisteva, il campus insieme alle planimetrie della famosa faglia californiana e poi il fiume, la costa, il canale). Ma non è il collage o il palinsesto il solo motore dell’operazione perché le tracce entrano in relazione con l’organizzazione spaziale. Una cavea diagonale (allo stesso tempo percorso, elemento paesaggistico, giardino di sculture all’aperto e organizzazione degli eventi museali che vi si addossano) e un percorso sopraelevato a mezzaluna che la attraversa. Una doppia geometria, secca e ben risolta, che come nel Wexner, si addossa a un edificio preesistente. Cavea diagonale e mezza luna proiettano linee di forza anche negli altri angoli del sito legando insieme, il parco, gli edifici, il lago. Rimane uno dei più intriganti progetti di Eisenman. p. 44




14. Carnegie-Mellon Research Center. Pittsburgh, Pennsylvania 1987-1988
...da una più ambiziosa e interessante ipotesi che si confrontava con la sinuosità del fiume (attraverso due linee di cubi di scala e di altezza diverse, che si sovrapponevano parzialmente in un doppio spessore), si riduce progressivamente di dimensione e al contempo si complessifica plasticamente (con una serie di operazioni di Sottrazione, Incastro e Intersezione e con una serie di altre strutture filiformi a ricordare le forme degli altri prismi virtuali) al punto da preoccupare i timidi amministratori dell’Università che affidano l’incarico ad altri progettisti. p. 48




15. Biocentro. Unversità Goethe, Francoforte sul Meno 1987
...Ai cubi frammentati e costosi del Carnegie Center si sostituiscono cinque blocchi di laboratori semplici e funzionali che si attaccano su entrambi i lati di una spina centrale. La spina è l’occasione per creare nuove più complesse geometrie: per articolare a “V” o a “U” l’attacco dei corpi dei laboratori, per spezzarli in due parti, per indicare la regola della futura crescita dell’organismo, per articolare le necessarie eccezioni (auditorium e servizi specialistici). La dialettica tra elementi ripetibili e variazioni è l’inizio di una tecnica di riduzione pragmatica delle necessità concettuali al farsi realistico della costruzione. Avrà un seguito. p. 52







IV - IN BETWEEN
12. Wexner Center for the Visual and Fine Arts. The Ohio State University, Columbus 1983-89
...tra gli edifici preesistenti penetra una maglia reticolare tridimensionale; una costruzione-percorso che trasforma lo spazio di risulta in nuovo fulcro, simbolico e funzionale, del progetto. Lungo la rampa che vi scorre, si snodano i percorsi e i fatti espositivi, si accede agli edifici esistenti sui due lati e alle estremità alle attrezzature richieste dal programma. L’idea dello spazio “tra” le cose come strategia di progetto (lo chiamerà, teorizzandolo anche negli scritti, «il between») fa qui la prima convincente apparizione. p. 40





V - SWINGING
a cration of a filed of forces within which the game of the project can take place
16. Casa Guardiola, Santa Maria del Mar, Cadice, Spagna 1988
...Chora è come le tracce del mare sulla sabbia. Le onde sulla spiaggia cui guarda questa casa, non sono un oggetto nello spazio «ma soltanto la registrazione di un movimento» che poi sarà cancellato e riscritto. Le tracce regolatrici, le memorie degli sterri archeologici si trasformano ora in questa impalpabile presenza, una assenza ogni volta riproposta attraverso la fragile presenza di un movimento. La stessa dello scodinzolio del cagnolino sulla tela.
Eisenman disegna la casa sul movimento ondulatorio della sua famosa “L”. Le geometrie che ne derivano, vibrano, dondolano, ruotano una sull’altra in pianta, sezione, alzato. Attraverso questi movimenti si vengono a creare booleanamente (a volte con l’Incastro altre con la Sottrazione altre con l’Intersezione) gli spazi, si forma il percorso che come House X attraversa scendendo la costruzione e nasce, soprattutto, una nuova estetica. p. 56









17. School of Architecture , University of Cincinnati, Cincinnati, Ohio 1988-81
...Il progetto, doveva rispondere a una doppia esigenza: riorganizzare gli spazi della facoltà esistente e poi edificare altre attrezzature (biblioteche, sale mostre, teatri studi uffici) che ne raddoppiasse quasi la superfici utile. La prima idea è relativamente semplice. Alla struttura dell’edificio esistente, che si muove funzionalisticamente a zig-zag sul terreno, viene aggiunta una struttura ad andamento ondulato che contiene le nuove attrezzature. Ma l’idea geniale scatta solo dopo il progetto di Guardiola e consiste nell’applicare la tecnica del Blurring simultaneamente al nuovo fabbricato e a quello preesistente. Entrambe le geometrie di base vengono duplicate e ruotate con la tecnica del cagnolino di Balla. Nasce un moto ondulatorio doppio: uno più geometrico (quello del vecchio edificio) l’altro più fluente determinato dalla curva in cui si organizzano le nuove funzioni. Apparentemente una pura follia, ma il risultato è di sconvolgente novità e di grande interesse perché queste due geometrie, giocando con incastri sottrazione e intersezioni reciproche dettano la conformazione dei nuovi spazi, dei volumi e delle stesse geometrie terrazzate o vegetali che si proiettano nel sito. Il progetto sembra un Yen sens [?], il simbolo orientale dell’amore, che fa vibrare e fremere le forme una sull’altra in un incessante moto ondulatorio. p. 60












VI - TOPOLOGICAL LANDFORM
18. Greater Convention Center, Columbus, Ohio 1989-93
...Eisenman per ottemperare alle necessità pratiche ed economiche deve effettivamente creare un volume rigido. Ma su questo innesta ondeggianti strutture che richiamano il sovrapporsi delle curve di livello, le tracce delle onde sulla spiaggia, ma anche gli innesti stradali vicini. Il risultato è che agli insulsi capannoni con frontalini degli abituali Convention center (luoghi coperti per grandi manifestazioni espositive) si sostituisce un’immagine nuova: una architettura senza un’unica facciata, perché ogni onda si presenta autonomamente all’esterno con un fronte ruotato, e dove le colorate e mosse coperture (visibili dai grattacieli limitrofi) sparano le linee dei laser in movimento sulla città. Gli interni sono bellissimi. Forse meno di quelli della Facoltà di architettura, ma questo progetto esiste: fa pensare anche le persone di Columbus e non solo gli architetti che leggono i disegni. p. 64


23. Max Reinhardt Haus. Berlino 1992
...L’idea dello sterro che aveva fatta la sua comparsa sin dal progetto di Berlino e i frammenti minerali fuoriusciti da improvvisi movimenti sotterranei (riemerge in alcuni edifici alti come nei progetti della Max Reinhardt Haus a Berlino, un grande arco ma qui composto di segmenti poliedrici, e negli uffici Alteka in Giappone [pagina seguente]) . p. 32

..
30. Rebstock Park, Quartiere Residenziale. Francoforte 1990
...Eisenman usa a Rebstock park il concetto di tessuto e la griglia ordinatrice, ma li rafforza con la propria idea dei tracciati urbani e degli sterri. Per cui alle griglie ortogonali tradizionalmente adoperate nei sistemi insediativi bassi ad alta densità, egli sostituisce tre tracciati tra loro diversi: il primo a maglia larga derivato dal sistema del grande geografo Mercatore, un secondo a trama fitta di un’area limitrofa, un terzo mistilineo che segue i confini ondulati dell’area di progetto localizzata tra gli anelli viari del cosiddetto “terzo anello verde” di Francoforte. I tre sistemi entrano in tensione. I vertici del sistema mistilineo si congiungono a quelli ortogonali deformando, piegando le linee perpendicolari in una serie di spezzate: un campo deformato che fa pensare a come l’energia gravitazionale degli edifici plasmi lo spazio tempo. p. 80






30. Chiesa per l'anno Duemila, Roma 1996







30. Parco della cultura, Saniago de Compstela 1999-
. 
31. Il giardino dei Passi Perduti, Verona 2003


.
VII - TELLURIC FORMALISM
28. Uffici Koizumi Sangyo, Tokyo 1988-1990
...Nell’altro palazzo realizzato sempre a Tokyo (uffici Koizumi-Sangyo), Eisenman dimostra con evidenza che per raggiungere i suoi messaggi (Tokyo come sintesi di luogo e “non-luogo”), non bisogna necessariamente decostruire l’intera fabbrica (con gli immaginabili costi), ma si può agire cercando una tensione dialettica tra le parti: le une standard (in questo caso la scatola uniforme dei diversi piani) le altre eccezionali (il grande bow-window di tre piani ottenuto con una rotazione progressiva di pannelli e bucature su la forma a “L” di base). p. 76












27. Uffici Nunotani, Tokyo 1990-1992
... Gli uffici Nunotani a Tokyo oltre a specchio convincente della caleidoscopica società giapponese e della telluricità del territorio – presentano dei modi innovativi di organiz-zazione dello spazio. Il core (blocco centrale di circolazione verticale e servizi dell’edificio multipiano) assume un originale perimetro poligonale che è posto nella zona di sovrapposizione dei due quadrati sfalsati in cui si suddivide il fabbricato. La localizzazione e l’andamento del blocco determina percorsi e viste interne ricche di sorprese. p. 72







Read Antonino Saggio text
"Moving Lines from Cannaregio to Castelvecchio"

Peter Eisenman e Antonino Saggio in occasione della Laurea honoris Causa a Peter Eisenman
Università la Sapienza, Aula Magna del Rettorato, Roma
22 marzo 2004
Go to the next section Workshop
The Chessboard of Peter Eisenman
