
Giuseppe
Terragni
Oltre il Razionalismo
la Villa Bianca a Seveso
Grazie alla Facoltà di Architettura
di Sassari Roma3
e al prof. Francesco Menegatti
La Lectio è organizzata in cinque parti
Overview :
chi è Giuseppe Terragni ?
I. La
realtà urbana della villa Bianca
II.
Visita attraverso le foto di Dennis Marsico e di Paolo Rosselli
III.
Analisi funzionale
IV. Analisi
compositiva
V. L'originalità della villa Bianca a Seveso
...uno dei migliori testi sull'architettura italiana contemporanea...
(dalla presentazione di F. Tentori)...dopo i convegni, le commemorazioni, i numerosi saggi critici degli ultimi decenni sembrava che su Giuseppe Terragni
non ci fosse più nulla da dire. Invece la monografia di Saggio riapre il tema...
(B. Zevi, "L'Espresso")

Nuova edizione del 2022 di LetteraVentidue
arricchita da un testo di Peter Eisenman "Il mio Terragni la mia
Italia"
Nuovo layout e immagini a cura di Dennis Marsico
Vai alla preview del libro e
alla bibliografia
Quattro edizioni Laterza a cominiciare 1995 - 2011 di un Classico della letteratura architettonica italianaOverview: chi è Giuseppe Terragni
GIUSEPPE ERCOLE ENEA
1904-1943
..
![]()
![]()
Ciam III
Una overview dell'Opera di Giuseppe Terragni
clicca sul link per vedere una raccolta delle opere
![]()
I. La realtà urbana della villa
Andiamo a visitarla
II. La visita della villa
Film basato sulle foto dei grandi fotografi
Dennis Marsico
Paolo Rosselli
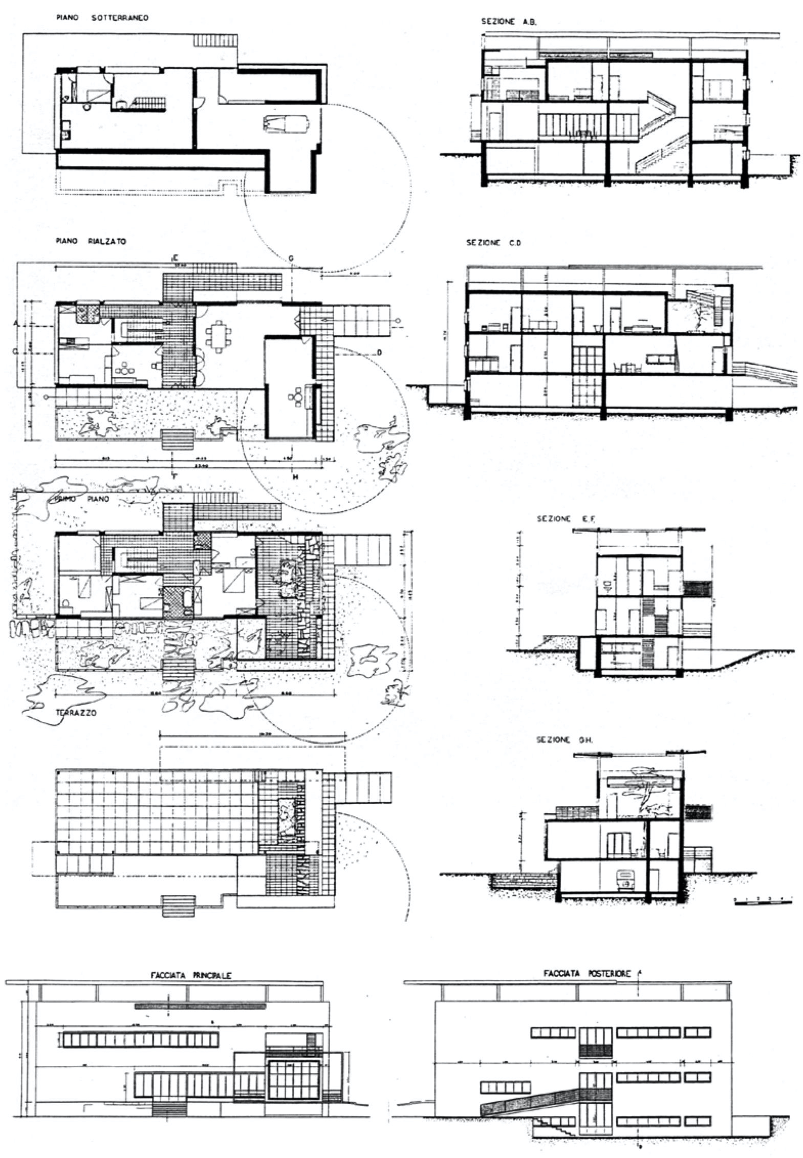
III. L'analisi funzionale della Villa
IV. L'analisi compositiva della Villa: il motivo del Telaio
1. Telaio come sistema strutturale
2. Telaio come contenitore funzionale (portico, balconate)
3. Telaio come elemento per il controllo climatico
4. Telaio come sistema modulare
5. Telaio nell'ordine gigante, telaio dentro telaio
6. Telaio come Finestra prospettica
7. Telaio come "Frame" come "Inquadratura" visione parziale in una sequenza filmica
1.
Telaio come sistema strutturale
![]()
2.
Telaio come contenitore funzionale ( portico, balconate)
![]()
3.
Telaio come dispositivo per il controllo climatico
![]()
4.
Telaio come sistema modulare![]()
5.
Telaio nell'ordine gigante, telaio dentro telaio
![]()
6.
Telaio come Finestra prospettica
7.
Telaio come "Inquadratura" come visione parziale in una sequenza filmica .i.e. frame
![]()
![]()
Vai alla selezione di Immagini
«Terragni e il Telaio»
Vedi una serie di film
con tutte le Opere di Terragni
Citazioni sul tema del telaio provenienti
da A. Saggio, Giuseppe Terragni Una Biografia critica
...due corpi parallelepipedi per i forni veri e propri). Qui fa la prima comparsa un tema che sarà tipico del Terragni maturo: la caratterizzazione della facciata attraverso la struttura a telaio. Non vi è la separazione tra telaio ed edificio, che sarà tipica delle opere milanesi e sviluppata nelle ultime conseguenze nella villa Bianca, ma è presente la stessa asimmetria tra l'articolazione della trama
strutturale rispetto all'effettiva massa volumetrica che si ha nel fronte principale della Casa del fascio p.22
...Il vuoto centrale si rivela come il negativo del solido entro cui è ricavato, come se volume pieno e vuoto interno facessero parte di uno stesso mondo e si richiedessero anche nell'uso del telaio strutturale a vista l'uno con l'altro .
p. 44 , e con la riucitura del telaio nell'ultima campata). p.45...il terzo, ideato a ridosso del conflitto, non fu mai realizzato. Ricostruito ed esposto in modello alla Biennale veneziana del 1976, il primo progetto rimane una delle opere più pure del Razionalismo: in una costruzione di acciaio e vetro si incrociano felicemente alcuni motivi tipici di Terragni: nella Rustici il telaio diventa un grande bowwindow che si appende al di sopra del seminterrato p. 59
... Il sistema di comporre la facciata della Toninello basato sul telaio (anche se invertito è il rapporto avanzamento arretramento) sembra identificare una sintassi p. 60
...La villa Bianca è preceduta da una serie di progetti di case unifamiliari: un tema ideale per sviluppare la ricerca espressiva perché meno vincolato dalle necessità rappre- sentative o dalle stringenti norme dei regolamenti e della cubatura. p.149
la parete stessa a racchiudere il volume, qui Terragni elabora il tema della doppia parete e del telaio. Invece del motivo a loggiato, l'architetto inventa un telaiogigante che raccoglie tutta la costruzione.
. È l'incorniciatura a telaio nella facciata d'ora in avanti «il telaio» che aveva fatto la sua prima comparsa nel retro dell'Officina del Gas, ma che è il motivo saliente della Casa del fascio progettata negli stessi mesi. Il telaio consente di avere una doppia parete: una sul fronte esterno (a protezione dalla luce e che delimita logge o portici) e l'altra, più arretrata, che raccoglie gli infissi. p.149
...Il telaio usato per ritmare, uniformare e dare chiaroscuro nella Casa alla V Triennale e trasformato in un macro contenitore nella Villa sul lago del '36 - compie un altro passo della sua evoluzione. Diviene un elemento antagonista al volume, si svincola così dagli usi precedenti per affiancarsi agli altri elementi «liberi» della casa. La rampa, le scale, la pensiline, il balcone insieme al telaio cospirano la messa in crisi del volume: lo scontro volume telaio del fronte su strada, la rampa di accesso sul retro, le pensiline del tetto che si proiettano fuori dalla linea della casa, l'aggetto del balcone sull'ingresso attaccano, sbilanciano, spingono in tutte le direzioni degli assi cartesiani il blocco steeometrico. Perché, naturalmente, in questa nuova interpretazione, il volume non è più sospeso ma appoggiato, ancorato direttamente al suolo, «coricato» come diceva Pagano. p. 157
..L'asilo condivide con la villa il ruolo indipendente che gioca il telaio, ma assume nel rapporto con la natura un nuovo accento. L'inizio è segnato dalla presenza, sulla strada, dello stesso telaio adoperato nella villa Bianca: un elemento antagonista al volume pieno, un pezzo di struttura sbilanciata nello spazio. Il telaio però non serve solo ad attaccare l'unitarietà del volume, a metterlo in crisi dinamicamente, ma è il prodotto della pressione esercitata dal giardino. È un segnale del cuore verde del progetto. E al giardino il telaio rimanda: nell'allineamento e nella medesima larghezza quindi nei reciproci traguardi visivi e nella preenza di una striscia di verde a prato incisa nel pavimento p. 225
.... di progettista particolarmente affilati: la ripartizione planimetrica in tre fasce, il telaiologgiato, il telaiogigante, il telaioantagonista e, naturalmente p. 199
....Il prospetto a nord è una delle composizioni più belle di Terragni. Un blocco solcato da tre lunghe asole si distacca dalla parete retrostante
sbilanciando l'architettura. Dietro al corpo avanzato, il sistema della tettoia e delle pensiline dell'attico si innalzano verso il cielo in una
nuova interpretazione del telaio. p. 205
4. L'originalità della villa Bianca a Seveso
Villa Bianca Oltre il Razionalismo, Un sapore arcaico modernissimo
Leggi
Antonino Saggio
The “Classical Sustrate” Creates very Modern Masterpieces Villa Bianca in Seveso
Il “Substrato Classico” crea Moderni capolavori Villa Bianca a Seveso
L’industria delle costruzioni, n. 480 luglio-agosto 2021 (pp. 8-19)
Altri materiali
su Giuseppe Terragni
***
Corso
dedicato a Terragni Futuro
La Sapienza 2004
***
Spot on Schools Mostra
Firenze 2005
![]()
***
Casa dell'Architettura Exhibit
Rome 2006
![]()
***
Film su "Tutte" le architetture realizzate da Giuseppe Terragni
***
Libri nella collana in The IT Revolution in Architecture Book Series
![]()
***
Selezione del lavoro degli studenti
nel corso Terragni Futuro
***
Film dedicato a Terragni Futuro
Down load
8 minuti 330 mega

Blog con approfondimenti dei laureandi di Saggio

***
Bibliografia
su Terragni e il razionalismo Scritii di Saggio
***